设为首页
加入收藏
首页
公司简介
产品展示
生产车间
联系我们
销售热线:13505267096
产品类别
补偿器系列
通用型波纹补偿器
船用补偿器
无约束型补偿器
单式轴向型补偿器
复式轴向型补偿器
单式角向型补偿器
万向铰链型补偿器
外压单式轴向型补偿器
单式万向型铰链补偿器
复式铰链角向型补偿器
大拉杆横向型补偿器
小拉杆横向型补偿器
高温轴向型补偿器
全埋型补偿器
直埋型波纹膨胀器
一次性补偿器
直管压力平衡型补偿器
曲管压力平衡型补偿器
直管旁通压力平衡型补偿器
MZP型煤气管道专用补偿器
MP-A型煤气管道扰性补偿器
天然气煤气管阀弹性伸缩器
非金属补偿器(膨胀节)
三向煤粉补偿器
钢衬四氟补偿器伸缩器膨胀节
电厂烟风道矩形圆角补偿器
电厂空冷系统单铰链补偿器
电厂空冷系统双铰链补偿器
非金属膨胀节纤维补偿器系列
风门系列
弹簧支架系列
金属软管系列
泵连接软管
半成品对外加工
球形(内锥)接头金属软管
风机盘管专用金属软接头
法兰连接金属软管
爪型快速连接金属软管
四氟软管、补偿器
金属软管、四氟软管系列
聚四氟乙烯推压管
四氟补偿器系列
衬氟管道系列
衬氟大型设备
氟塑料(FEP)衬里阀门
冷却器、换热器
BR板式冷却器
钎焊板式换热器
空压机后冷却器
FL空气(风)冷却器
铝制管翅式冷却器
GL系列冷却器
GLC型冷却器
GLL型卧式冷却器
GLL型立式冷却器
SGLL型双联卧式冷却器
GLQ型汽轮机配套冷却器
SL型管式冷却器
LC系列冷却器
LQ 系列冷却器
2LQFL 型冷却器
2LQFW型冷却器
2LQF1W型冷却器
2LQF1L型冷却器
2LQF4W型冷却器
2LQG2W型冷却器
2LQGW型冷却器
2LQF6W型冷却器
4LQF3W型冷却器
LQG系列船用冷却器
电机冷却器
轴承冷却器
OR多管系列油压冷却器
联系我们
地址:江苏省姜堰区娄庄镇工业园区
电话:0523-88159096
传真:0523-88159196
联系人:朱先生 13505267096
产品展示
您目前所在位置:首页 >> 产品展示 >>
空压机后冷却器
空压机后冷却器
空压机后冷却器
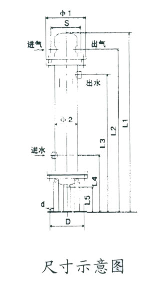
本产品采用换热方法,冷却郊果好,出气温度可降至40℃。体积小,重量轻,外形美观,使用维护方便。
Copyrights
泰州市百威机械制造有限公司
All rights reservered. 地 址:姜堰区娄庄镇工业园区
联系人:朱先生 手 机:13505267096 电 话:0523-88159096 传 真:0523-88159196
网 址:http://www.baiweijx.com 友情链接:
易普网络
备案号:
苏ICP备13037380号-1